Carroll Hill, Loughton
Orangery
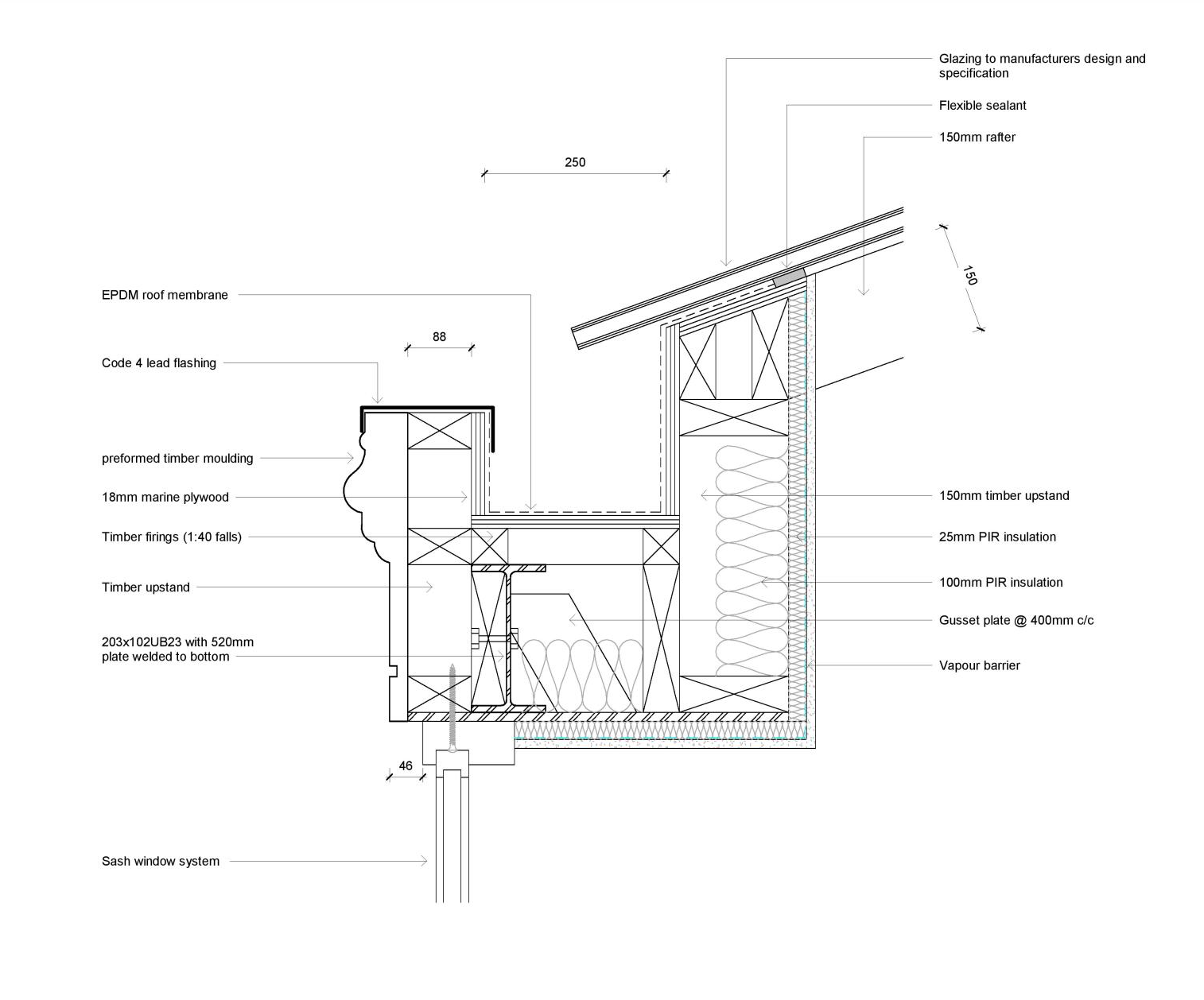
Studio Twenty Three were appointed through repeat business to design a large orangery to the rear of an Edwardian property. We undertook extensive research around the specific features and details of the existing property to inform the design and ensure it was in keeping with the style. The client regularly held large family events and required the space to open out onto the large patio.
This project required a non-traditional building method. We worked closely with specialists to design the mouldings and façade detailing.





