Sodnac, Mauritius
6 luxury apartments
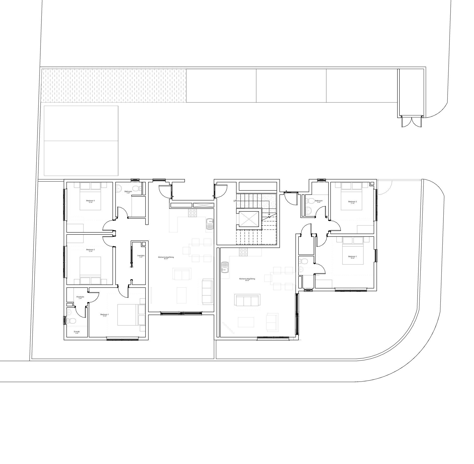
Studio Twenty Three were initially appointed to produce ideas as to how a piece of land could be developed. We began by reviewing the policy on development in Mauritius to understand what would be possible. Whilst this was in a different context to design in the UK, the client wished to build a development that met high standards and be attractive to potential buyers.
The design is a simple box with carved out balconies and large windows that provide views to the surrounding mountains.




