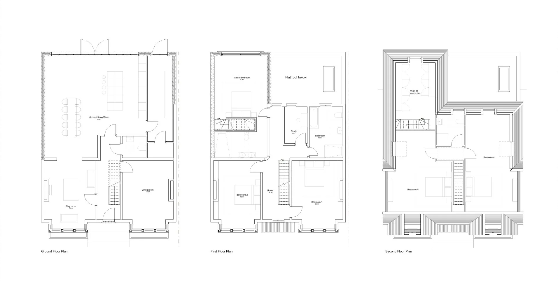
Eynsford Road, Farningham
Side return extension
Studio Twenty Three were appointed to design significant extension to this Edwardian property to create a family home that met the needs of our client. The rear extension provided a large living space with full width crittall doors with views to the garden and woodland beyond.






